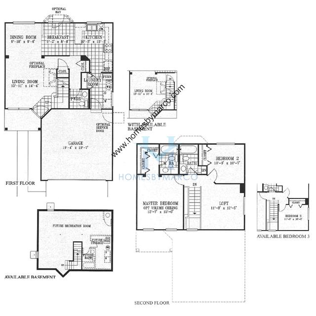
This 2 bedroom with 2 1/2 bath home has kitchen with breakfast area and option of bay window. Living room has option of fireplace. Garage entry in laundry room. Master bedroom has private bath. Loft can be 3rd bedroom. There are currently no Adler models for sale.
| Bedrooms | Bathrooms | Square Feet | Basement |
|---|---|---|---|
| 2 | 2.1 | — | Yes |
| Model | Beds | Baths | Size | Basement |
|---|---|---|---|---|
| Brightwell | 3 | 1.1 | 1,560 ft2 | Optional |
| Clarewood | 3 | 2 | 1,908 ft2 | No |
| Devon | 3 | 1.1 | 1,728 ft2 | Optional |
| Foxmoor | 3 | 2.1 | 1,576 ft2 | Full |
| Hartford | 4 | 2.1 | 2,313 ft2 | Full |