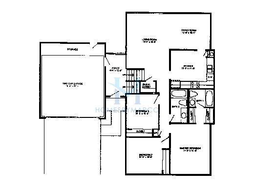
Dorchester model, Apple Orchard, Bartlett, IL

Bedrooms Bathrooms Square Feet Basement
4 2.1 2,100 ft2 None
Photos of the Dorchester model in the Apple Orchard in Bartlett, IL
5 photos

Models for Sale

No models currently for sale

Other Models

Model Beds Baths Size Basement
2 Level
2 Story
2-story
Alpine 3 2 1,647 ft2 Partial
Avalon 5 2.1 2,081 ft2 Full
Berkshire 3 2.1 Partial
Bi-level
Brentwood 4 2.1 2,282 ft2 Full
Brookton 4 2.1 1,912 ft2 Full
Cambridge 4 2.1 2,427 ft2 None
Creekside 3 2 1,736 ft2 None
Custom
Custom/expanded
Cypress 4 3 1,356 ft2 Full,Walkout
Dartmouth
Elm 3 2 Partial
Essex 3 2 1,938 ft2 None
Fairfax 3 1.1 1,750 ft2 Walkout
Glenn 3 1.1 1,672 ft2 None
Hawthorne 3 1.1 1,600 ft2 None
Linden 4 2 1,468 ft2 Partial,English
Manchester 3 2 1,696 ft2 Full
Maple 3 2 1,600 ft2 None
Maple Plus 3 2 Full,Walkout
Newberry 3 2.1 1,600 ft2 None
Oak 3 2 1,135 ft2 Partial
Oak With Sub Basement
Original Model Home
Perfect
Raised Ranch
Ranch
Split
Split Level
Split Level With Addition
Split Level With Sub
Split W/ Sub Basement
Split W/sub
Stratford 3 2.1 1,944 ft2 Full
Tri Level
Tri-level
Two Story
Wellington
Windsor 3 3 1,572 ft2 Partial
Show all 43 models