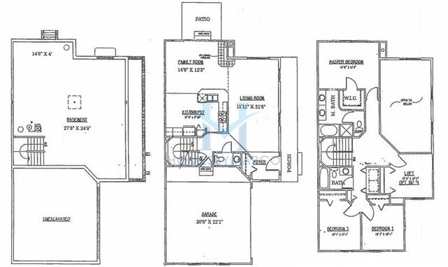
Dundee 2 model, The Highlands, Streamwood, IL

Bedrooms Bathrooms Square Feet Basement
3 2.1 1,721 ft2 Full
Photos of the Dundee 2 model in the The Highlands in Streamwood, IL
1 photo

Models for Sale

No models currently for sale

Other Models

Model Beds Baths Size Basement
Abercrombi 2 2.1 Full
Biltmore 3 2.1 1,579 ft2 Full
Castlerock 3 2.1 1,649 ft2 Full
Dundee 3 2.1 1,720 ft2 Full
Essex 3 2.1 1,950 ft2 Full
Fielding 3 2.1 1,900 ft2 Full
Geneva 3 2.1 1,916 ft2 Full
Highlander 3 2.1 2,050 ft2 Full
Show all 8 models