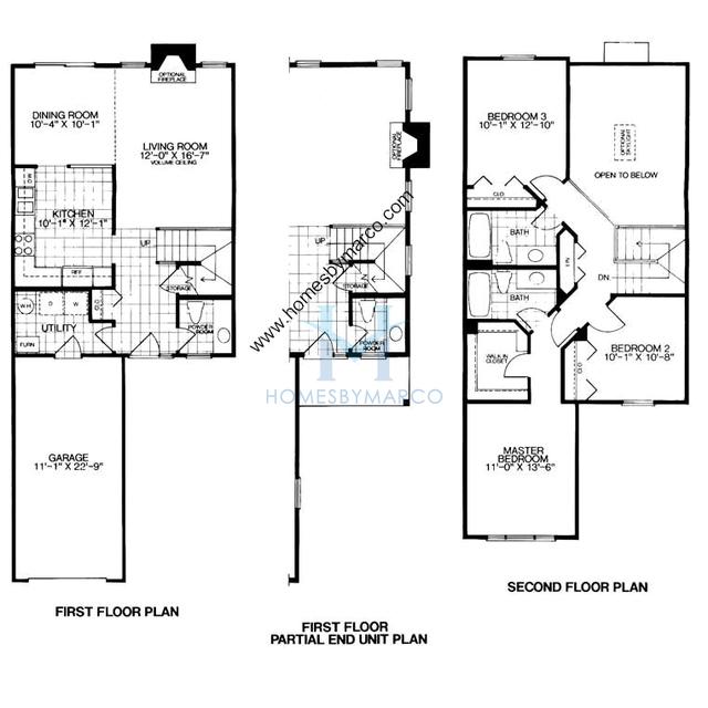
Two Story with 3 Bedroom and 2-1/2 Baths, Living room, Dining Room, Royal Kitchen, Walk-in Closet and Optional Loft in lieu of Bedroom. There are currently no Periwinkle models for sale.
| Bedrooms | Bathrooms | Square Feet | Basement |
|---|---|---|---|
| 3 | 2.1 | 1,458 ft2 | No |
| Model | Beds | Baths | Size | Basement |
|---|---|---|---|---|
| Aspen | 2 | 1 | 950 ft2 | None |
| Aster | 2 | 1.1 | 1,125 ft2 | No |
| Astor | 2 | 1.1 | — | None |
| Foxglove | 2 | 2.1 | 1,245 ft2 | No |
| Gardenia | 2 | 1 | — | No |