Advanced Search
About
Sell
Log In
Contact
Marco Amidei
Real Estate Agent
Phone
Email
(847) 630-4886
Send Text to Marco
Brendan Tabor
Mortgage Lender
Get Qualified for a Loan
Having a problem with the site? Let us know!
Report a Problem
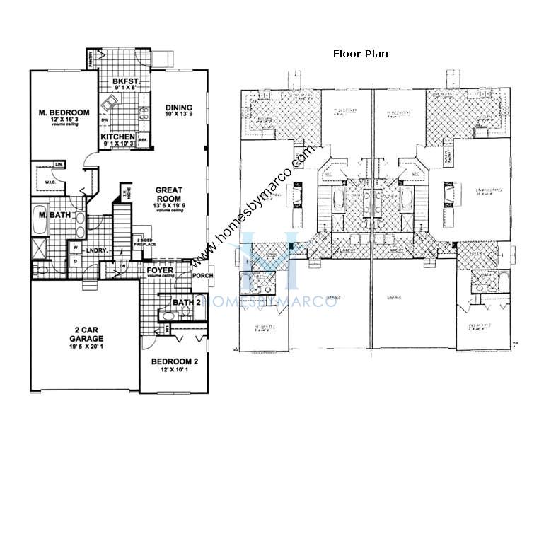
Photos of
Raphael
in
Raintree Village