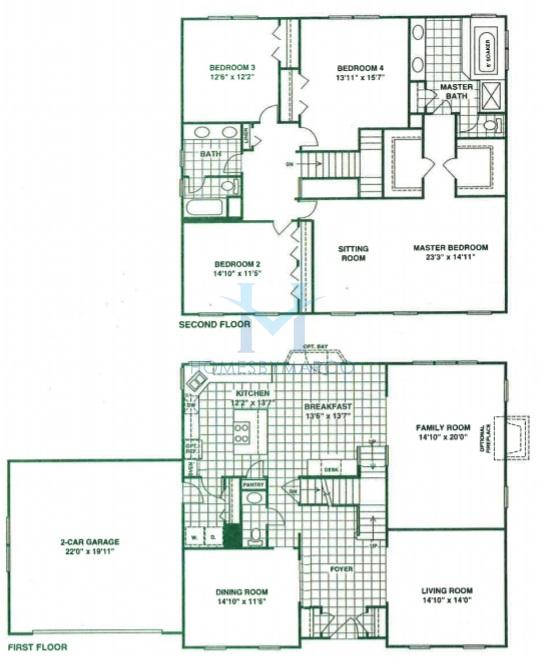
Rushmore model, Hunters Ridge, Hoffman Estates, IL

Bedrooms Bathrooms Square Feet Basement
4 2.1 2,826 ft2 Yes
Photos of the Rushmore model in the Hunters Ridge in Hoffman Estates, IL
1 photo

Models for Sale

No models currently for sale

Other Models

Model Beds Baths Size Basement
Arlington 3 2.1 2,600 ft2 Full
Briarwood 4 2.1 Yes
Bristol 4 2.2 3,200 ft2 Partial,Walkout
Ellsworth 4 2.1 2,835 ft2 Full,Walkout,En
Franklin 4 3.1 3,505 ft2 Full
Gettysburg 5 4.1 3,880 ft2 Full
Monarch 4 3 2,482 ft2 Full
Monticello 4 3 Yes
Regency 4 4.1 4,061 ft2 Full
Saratoga 4 2.1 Full
Shenadoah 5 3 2,424 ft2 Full
Sierra 4 2.1 2,374 ft2 English
Yellowstone 5 2.1 Yes
Show all 13 models